AAA MAIN BANER

BANNER 2018 MOBILE

tel. 504 563 591
pon-pt 9:00-16:00
  • Menu
  • Wyszukiwarka
6 290 zł Out of stock

ALION 2M Z WYKUSZEM

/Alion 2M z wykuszem/ALION 2M Z WYKUSZEM W1
/Alion 2M z wykuszem/ALION 2M Z WYKUSZEM W1
/Alion 2M z wykuszem/ALION 2M Z WYKUSZEM W2
/Alion 2M z wykuszem/ALION 2M Z WYKUSZEM W3
/Alion 2M z wykuszem/ALION 2M Z WYKUSZEM W4
/Alion 2M z wykuszem/ALION 2M Z WYKUSZEM W5
/Alion 2M z wykuszem/ALION 2M Z WYKUSZEM W6

Specyfikacja

ALION 2m W2

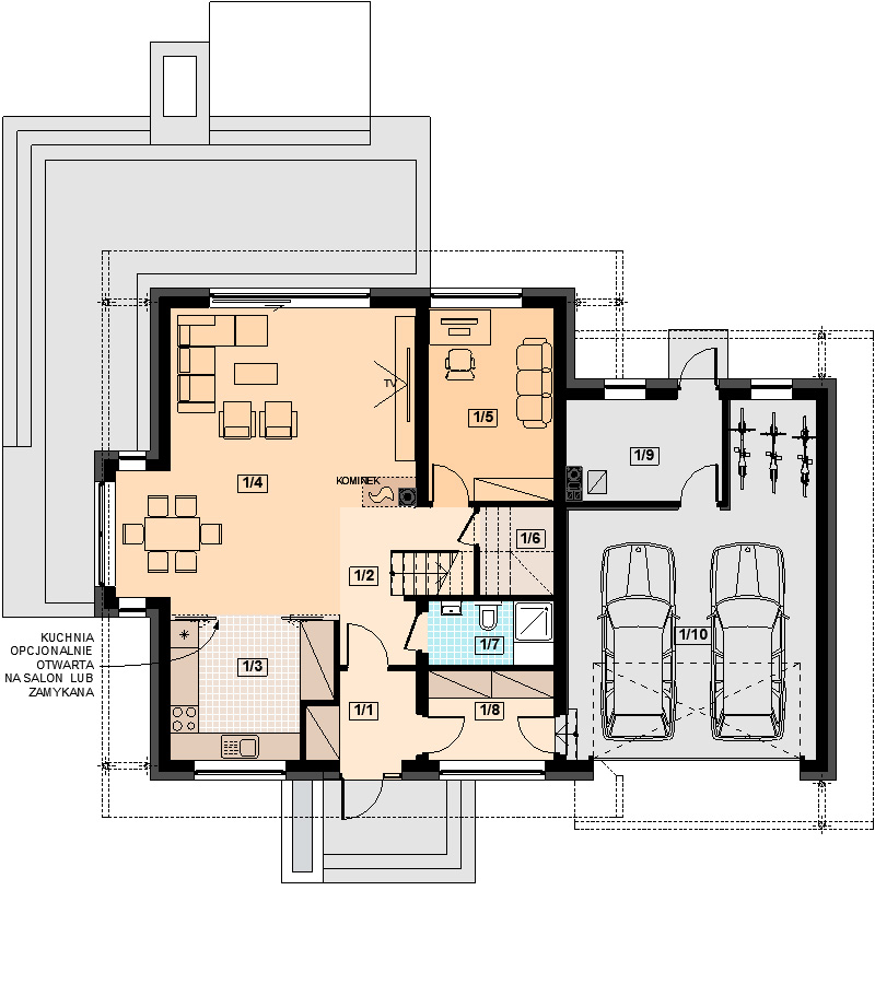
floor1 big

  • 1. WIATROŁAP - 4,07 m²
  • 2. HOL - 6,26 m²
  • 3. KUCHNIA+spiżarka - 10,23 m²
  • 4. SALON + JADLANIA - 34,94 m²
  • 5. POKÓJ / GABINET - 11,51 m²
  • 6. SCHOWEK - 1,52 m²
  • 7. ŁAZIENKA - 3,79 m²
  • 8. GARDEROBA - 5,31 m²
  • 9. KOTŁOWNIA - 7,18 m²
  • 10. GARAŻ - 33,49 m²

floor2 big

*PODDASZE (w nawiasach podano powierzchnie przy podłodze); wysokość ścianki kolankowej 80cm w części mieszkalnej i 68cm nad garażem.
  • 1. KOMUNIKACJA - 5,73 m²
  • 2. POKÓJ - 11,75 (17,05) m²
  • 3. POKÓJ - 14,02 (20,20) m²
  • 4. POKÓJ - 12,32 (17,12) m²
  • 5. ŁAZIENKA - 11,45 (14,26) m²
  • 6. STRYCH - 27,99 (42,37) m²

plot

cs1 big

cs2 big

el1 big

ALANDRA EL2

ALANDRA EL3

ALION EL4

140,08
153,42
562,06
16,14
10,74
garaż dwustanowiskowy
23,14
18,74
8,40
40
250,15
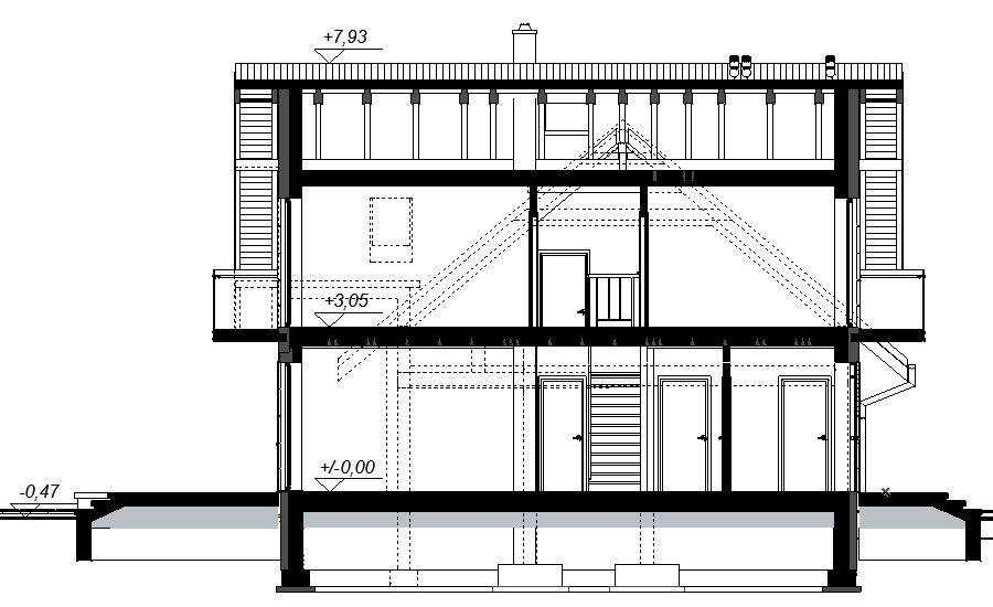
ALION 2M Z WYKUSZEM to bardzo funkcjonalny i atrakcyjny wizualnie dom dla 3-6 osobowej rodziny o eleganckiej formie i współczesnej estetyce oraz prostej, taniej, dokładnie przemyślanej konstrukcji. Jest to budynek parterowy z użytkowym poddaszem, niepodpiwniczony, z garażem dwustanowiskowym. Bryła domu jest tradycyjna, zaprojektowana z najwyższą dbałością o proporcje i funkcjonalność. Na parterze budynku zaprojektowana została przestronna i wygodna strefa dzienna składająca się z kuchni, jadalni ze słonecznym wykuszem oraz salonu otwartego na taras i ogród. Kuchnia w zależności od potrzeb może być zamykana, np. drzwiami przesuwnymi lub otwarta, stanowiąc jedną strefę wraz z jadalnią i salonem. Dzięki doświetleniu strefy dziennej zarówno od strony ogrodu jak i z boku- od strony jadalni, dom nadaje się na każdą działkę, zarówno z wjazdem od północy jak i od południa, wschodu bądź zachodu. Uzupełnieniem kuchni jest pojemna spiżarka. Na parterze zaprojektowano również pokój, który może służyć jako pokój gościnny, gabinet czy pokój najstarszego członka rodziny, łazienkę, garderobę, która może też pełnić funkcję pomieszczenia gospodarczego oraz garaż i kotłownię dostępną z garażu z wyjściem na ogród dzięki czemu może ona stanowić też miejsce składowania narzędzi ogrodowych. W wiatrołapie przewidziano miejsce na pojemną szafę wnękową. Na poddaszu znalazły się trzy wygodne pokoje oraz funkcjonalna łazienka z wanną i kabiną prysznicową oraz pralką. Strych dostępny jest z półpiętra, może on być przeznaczony na dodatkowy pokój, garderobę, pralnię, siłownię, saunę czy salę z kinem domowym. Może się w nim znaleźć np. sala do gry w bilard z barkiem. Strych może zostać też podzielony na kilka pomieszczeń o różnych funkcjach. W projektowaniu budynku ALION 2M Z WYKUSZEM szczególną uwagę zwrócono na atrakcyjny, nowoczesny wygląd zewnętrzny, proporcjonalność bryły budynku, odpowiednie doświetlenie i funkcjonalne rozplanowanie pomieszczeń przy zachowaniu prostoty konstrukcji oraz zwartości bryły domu. Dom zaprojektowano jako energooszczędny. Dostępne są również inne wersje projektu: ALION - z garażem jednostanowiskowym, ALION 2M, ALION MAŁY, ALION MAŁY 2M.
Ściany zewnętrzne i wewnętrzne nośne z bloczków Ytong, docieplone 20cm styropianu. Kominy systemowe. Ścianki wewnętrze działowe na parterze z bloczków Silka, na poddaszu z płyt GK bądź murowane. Ściany fundamentowe z bloczków betonowych. Strop gęstożebrowy Teriva. Schody wewnętrzne żelbetowe. Wszystkie technologie można zmienić na etapie adaptacji.
Elewacje wykończone tynkiem mineralnym oraz płytami drewnopodobnymi z laminatu (HPL). Alternatywnie zastosować tzw. dekor-deskę (profile elewacyjne imitujące strukturę drewna) lub deski elewacyjne. Cokoły wykończone płytkami klinkierowymi lub tynkiem mozaikowym. Tynki wewnętrzne gipsowe lub cementowo-wapienne. Dachówka cementowa lub ceramiczna. Stolarka okienna drewniana lub PCV.
projekt/alion-2m-z-wykuszem-lustro
WT2021

WT 2017/2021
** Przegrody budowlane spełniają WT 2021
** Powierzchnia użytkowa podana jest bez garażu i strychu

/alion

 

DMC Firewall is developed by Dean Marshall Consultancy Ltd